Apartment / flat · New Build Villajoyosa. Costa Blanca North

Ref.NB-85453
543.000€
  • Bedrooms
    Bedrooms 3
  • Bathrooms
    Bathrooms 2
  • Pool
    Pool Community

 

Year of construction: 2025
Delivery date: 2028-12-01
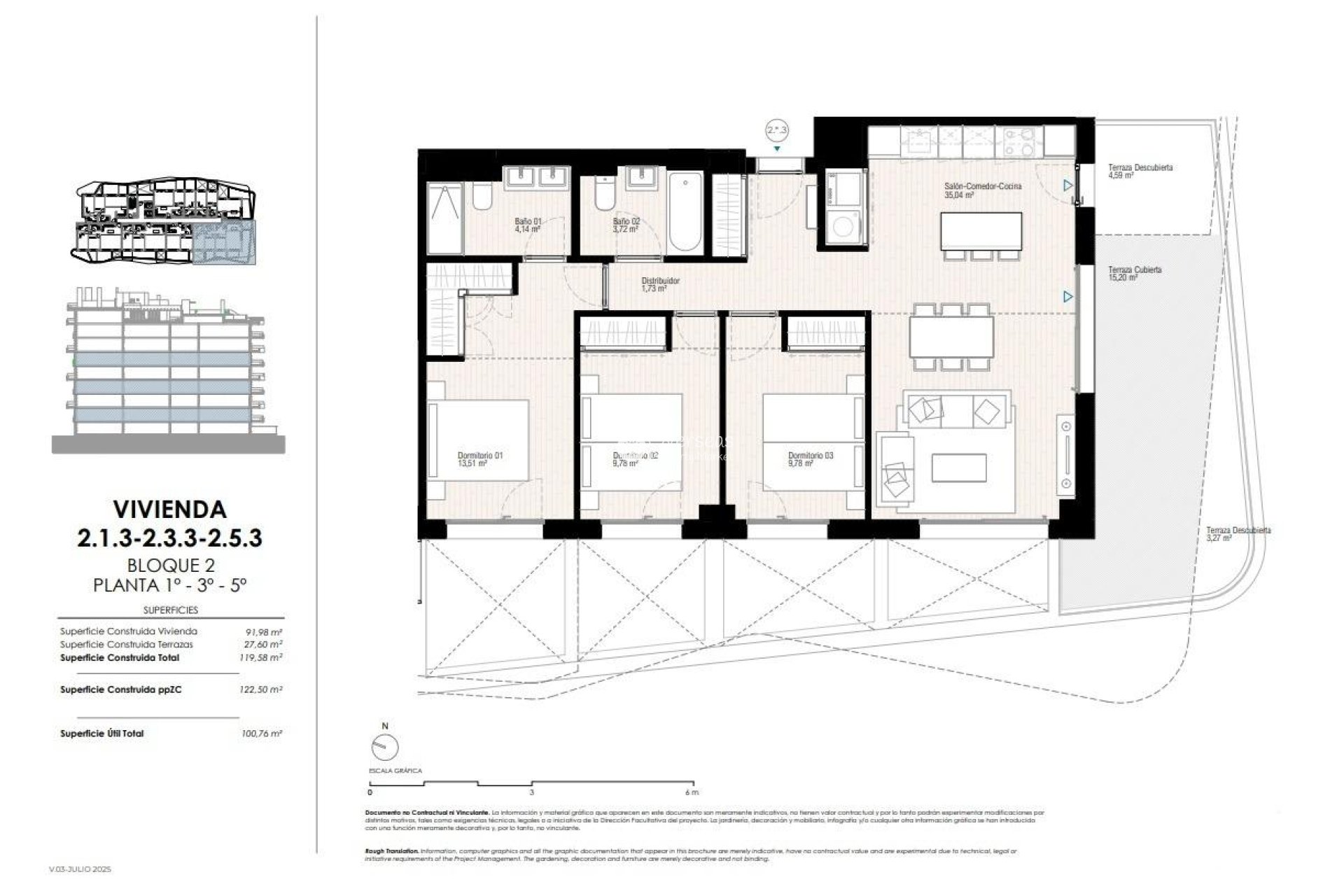
Bedrooms: 3
Bathrooms: 2
Usable: 91m2
Balcony: 17 m2
Pool: Community
Floor: 1st
Distance to beach: 400 Mts.

Description & features

Apartment / flat · New Build Villajoyosa. Costa Blanca North

Luxury Resort in Villajoyosa – A Seaside Paradise

Location

Contact us Ask for info

Data Controller: Overseas Property Market, Purpose of Processing: Management and control of the services offered through the Real Estate Services website, Sending information via newsletter and others, Legal Basis: By consent, Recipients: Data will not be shared, except for accounting purposes, Rights of Interested Parties: Access, rectify, and delete data, request its portability, object to processing, and request its limitation, Source of Data: The Data Subject, Additional Information: You can consult additional and detailed information on data protection Here.
Search
WhatsApp Contact us