Apartamento / piso · Obra nueva Villajoyosa. Costa Blanca Norte

Ref.NB-85453
533.000€
  • Habitaciones
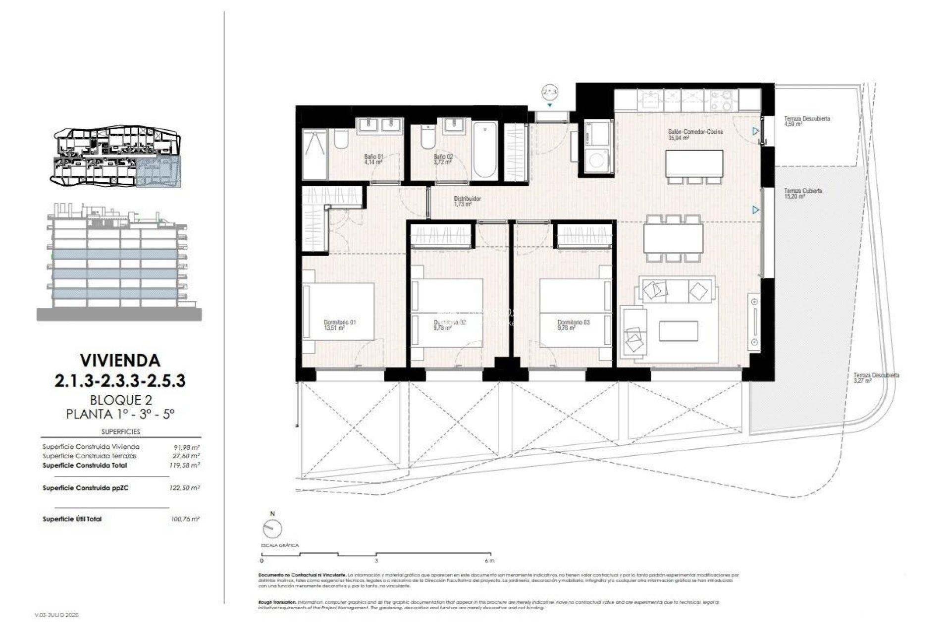
    Habitaciones 3
  • Baños
    Baños 2
  • Piscina
    Piscina Comunidad

 

Año de construcción: 2025
Fecha de entrega: 2027-12-01
Habitaciones: 3
Baños: 2
Útiles: 91m2
Balcón: 17 m2
Piscina: Comunidad
Piso:
Distancia a la playa: 400 Mts.

Descripción & características

Apartamento / piso · Obra nueva Villajoyosa. Costa Blanca Norte

Resort de lujo en Villajoyosa - Un paraíso junto al mar

Localización

Contacte con Nosotros Solicitar información

Responsable del tratamiento: Overseas Property Market, Finalidad del tratamiento: Gestión y control de los servicios ofrecidos a través de la página Web de Servicios inmobiliarios, Envío de información a traves de newsletter y otros, Legitimación: Por consentimiento, Destinatarios: No se cederan los datos, salvo para elaborar contabilidad, Derechos de las personas interesadas: Acceder, rectificar y suprimir los datos, solicitar la portabilidad de los mismos, oponerse altratamiento y solicitar la limitación de éste, Procedencia de los datos: El Propio interesado, Información Adicional: Puede consultarse la información adicional y detallada sobre protección de datos Aquí.
Buscar
WhatsApp Contacte con Nosotros