Luxe Resort in Villajoyosa - Een paradijs aan zee
Ontdek een uniek wooncomplex in Playa del Torres
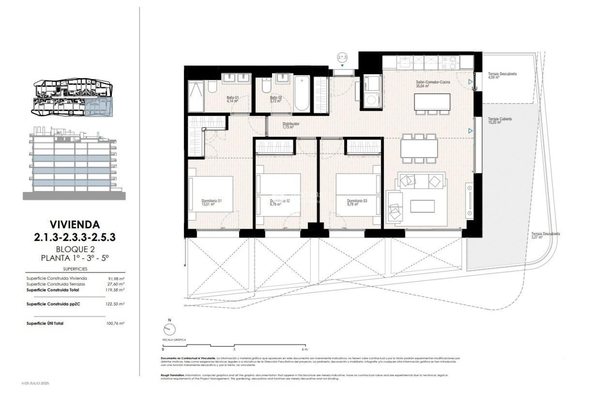
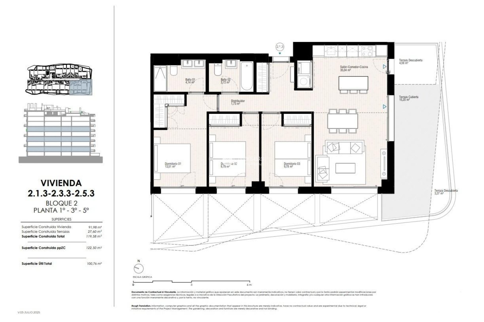
Dit exclusieve nieuwbouwproject ligt op minder dan 5 minuten lopen van het serene Playa del Torres in Villajoyosa en biedt 164 moderne appartementen en penthouses met 1 tot 3 slaapkamers. De gemeenschap is ontworpen om de ultieme levensstijl te bieden en combineert luxe, ontspanning en ongeëvenaarde voorzieningen in een rustige mediterrane omgeving.
Uitzonderlijke voorzieningen voor alle bewoners
Het hart van dit project is de Roof Top, gelegen op het dak van blok 2. Deze doordacht ontworpen ruimte omvat een prachtig uitzicht op de Middellandse Zee. Deze doordacht ontworpen ruimte omvat een prachtig zwembad met panoramisch uitzicht, chill-out gebieden, een barbecue zone, een multi-use gebied, en een gazebo, perfect om te socialiseren of te ontspannen.
Indoor social lounge, ideaal om te dineren met vrienden of als coworking ruimte.
Voor waterliefhebbers beschikt het complex over:
Zwembaden in tropische stijl met toegang in strandstijl.
Een verwarmd zwembad, een kinderbad en een verwarmde jacuzzi.
Fitnessliefhebbers kunnen genieten van:
Binnen- en buitengymnastiek, compleet met calisthenics circuit.
Een putting green en minigolf voor vrijetijdsactiviteiten.
Moderne woningen met eersteklas voorzieningen
Elk appartement is uitgerust met:
Een volledig ingerichte keuken met hoogwaardige apparatuur, waaronder een koelkast, magnetron, oven, vaatwasser en een geïntegreerde wasmachine/droger.
Energie-efficiënte aerothermische systemen voor warm water en airconditioning.
Vloerverwarming in badkamers.
PVC ramen van hoge kwaliteit met thermische isolatie en dubbele beglazing.
Privéparkeerplaats en bergruimte voor extra gemak.
Het gebouw heeft een A-energielabel, wat zorgt voor maximale efficiëntie en duurzaamheid.
Perfecte locatie in Villajoyosa
Dit complex ligt verscholen in Playa del Torres en biedt een vredig toevluchtsoord omringd door natuurlijke schoonheid. Het kristalheldere water en de turquoise tinten van het strand vormen een idyllische achtergrond voor ontspanning. Het complex is gunstig gelegen:
2 km van het charmante centrum van Villajoyosa.
10 km van Benidorm, met zijn bruisende nachtleven en winkels.
30 minuten met de auto naar de luchthaven van Alicante.
Villajoyosa, bekend om zijn kleurrijke huizen en rijke geschiedenis, blijft een authentiek mediterraan juweeltje. Onlangs erkend als de “Best Secret Destination in Europe 2024” door European Best Destinations, combineert deze stad traditie, natuurlijke schoonheid en rust.
Je droomhuis wacht in Playa del Torres
Ervaar het beste van het moderne leven in een natuurparadijs. Met zijn toplocatie, luxueuze voorzieningen en eigentijds design is dit project perfect voor wie op zoek is naar een huis aan zee. Neem vandaag nog contact met ons op om een bezichtiging te plannen en deze prachtige woning van jou te maken!