Ground Floor Bungalow · Nouvelle construction Torrevieja. Costa Blanca South

Réf.NB-53663
340.000€
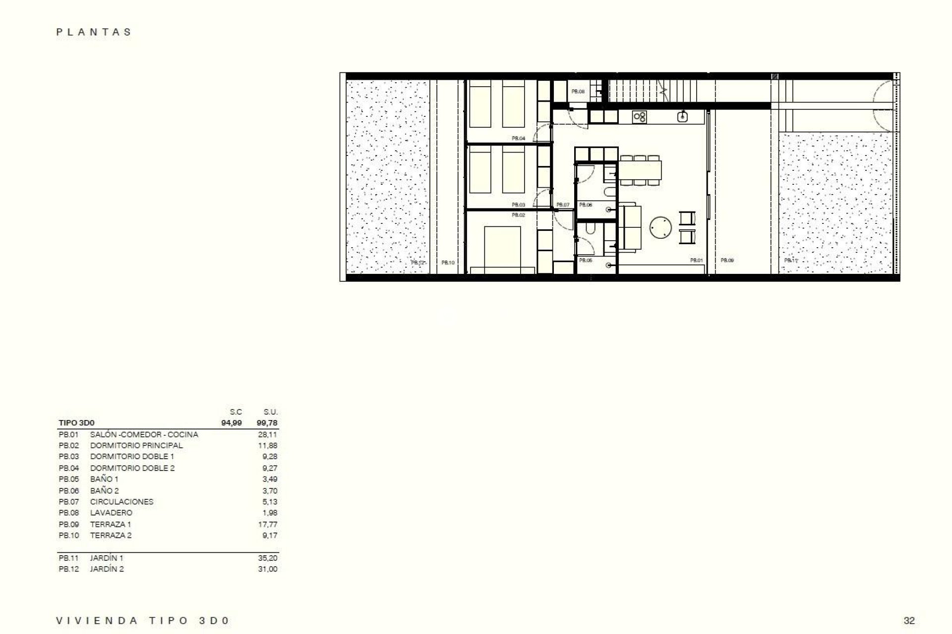
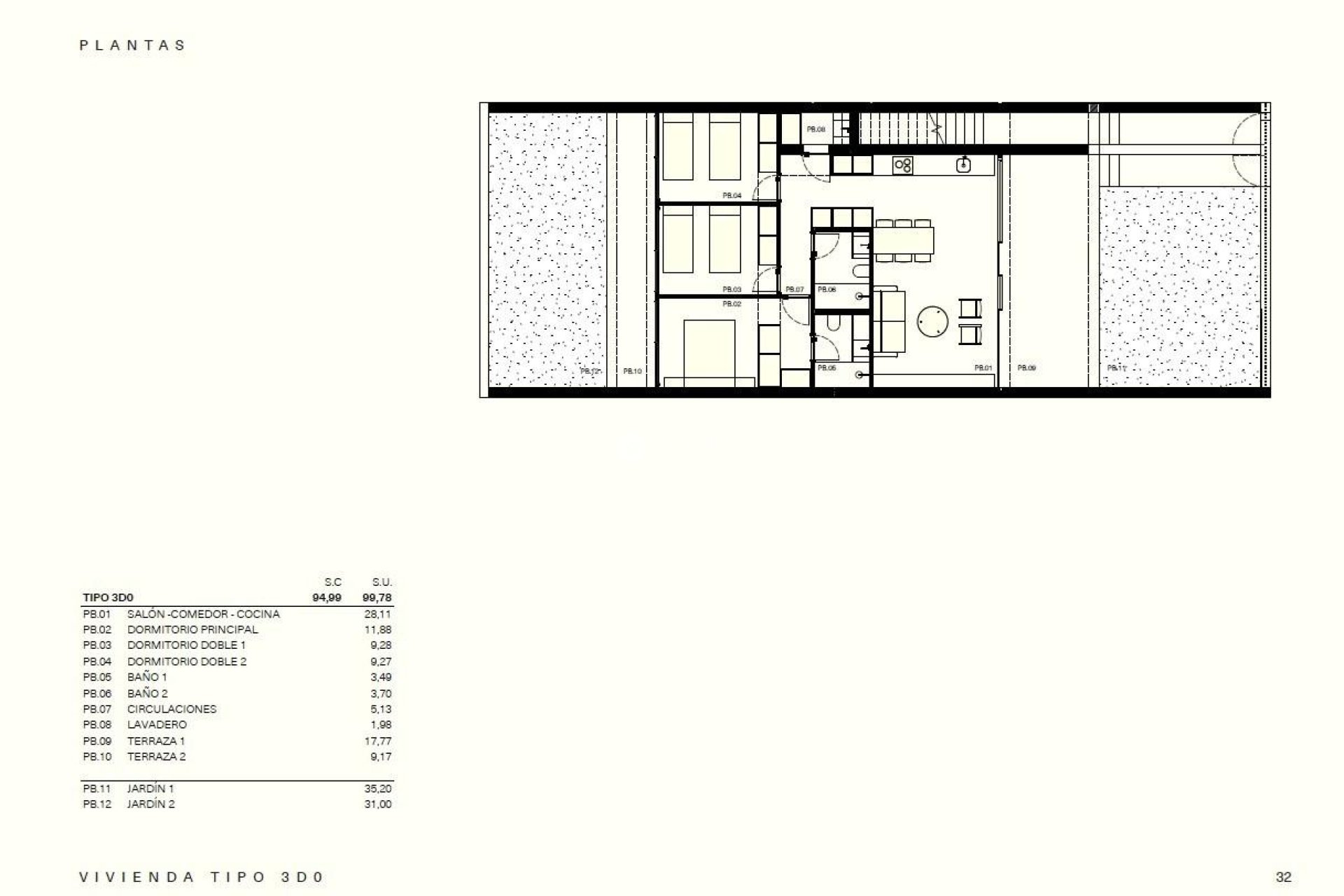
  • Intrigue 76m2
  • Chambres
    Chambres 3
  • Nbr. Sdb
    Nbr. Sdb 2
  • Piscine
    Piscine Communauté

 

Année de construction: 2026
Date de livraison: 2026-12-01
Chambres: 3
Nbr. Sdb: 2
Construits: 94m2
Terrain: 76m2
Balcon: 27 m2
Piscine: Communauté
Distance à la plage: 3500 Mts.

La description & les caractéristiques

Ground Floor Bungalow · Nouvelle construction Torrevieja. Costa Blanca South

Appartements neufs à Los Balcones, Torrevieja

Emplacement

Contactez-nous Demander des informations

Responsable du traitement: Overseas Property Market, Finalité du traitement: Gestion et contrôle des services proposés sur le site Web des Services immobiliers, Envoi d'informations via newsletter et autres, Base légale: Par consentement, Destinataires: Les données ne seront pas partagées, sauf à des fins comptables, Droits des personnes concernées: Accéder, rectifier et supprimer les données, demander leur portabilité, s’opposer au traitement et en demander la limitation, Source des données: La personne concernée, Informations supplémentaires: Vous pouvez consulter les informations supplémentaires et détaillées sur la protection des données Ici.
Rechercher
WhatsApp Contactez-nous