Appartements loft duplex modernes au cœur d'Alicante
Nouveau programme immobilier exclusif dans le quartier de Benalúa
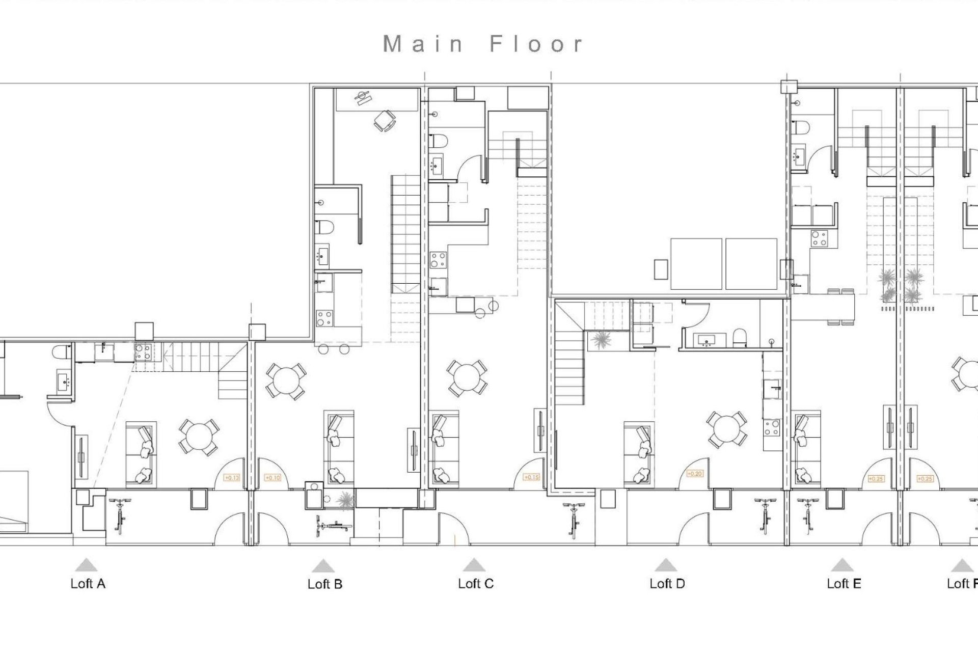
Découvrez une opportunité exceptionnelle d'acquérir un élégant appartement loft duplex à Benalúa, l'un des quartiers les plus animés et les mieux desservis d'Alicante. Ce projet unique transforme six locaux commerciaux inutilisés en lofts résidentiels contemporains, offrant un style de vie urbain moderne à seulement 1 km de la côte méditerranéenne. Benalúa est connu pour ses commerces de proximité, ses cafés, ses activités culturelles et sa proximité avec le centre-ville, ce qui en fait un quartier très prisé tant par les résidents que par les investisseurs.
Design contemporain de style loft
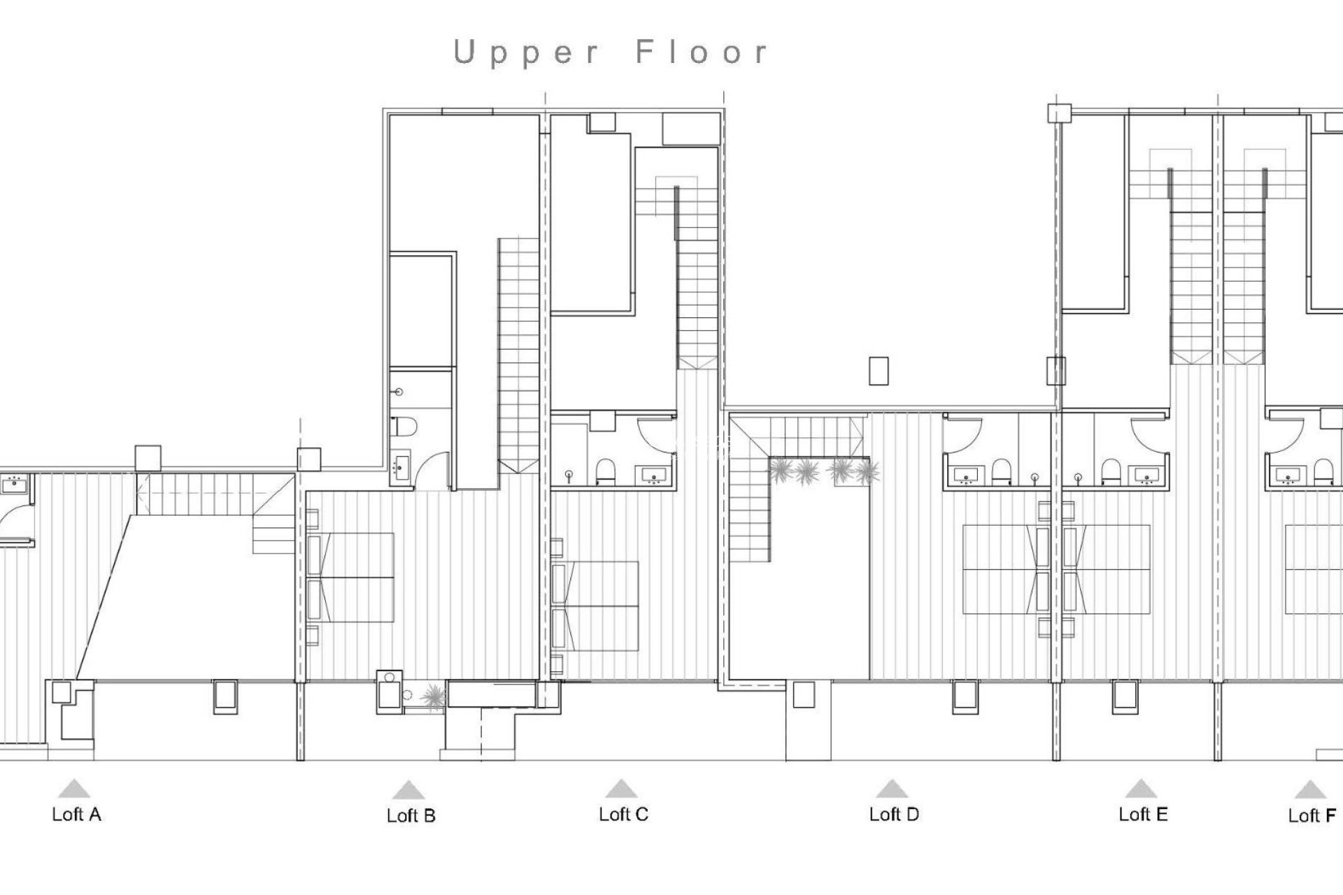
Chaque logement a été entièrement repensé pour offrir un espace de vie frais, ouvert et élégant. La promotion comprend des lofts en duplex de 1 et 2 chambres avec 2 salles de bains, tous dotés d'impressionnants espaces à double hauteur qui améliorent la lumière naturelle et offrent une véritable ambiance loft. L'étage supérieur abrite une chambre et une salle de bains complète, créant ainsi intimité et confort.
Avec un accès indépendant depuis la rue et une terrasse privée, chaque appartement allie architecture moderne et fonctionnalité. Des finitions de haute qualité, des agencements contemporains et des intérieurs lumineux font de ces lofts un choix idéal pour ceux qui recherchent style et fonctionnalité.
Confort et équipements collectifs
Les résidents auront accès à une piscine commune située dans l'immeuble, offrant une atmosphère relaxante et rafraîchissante pour les chaudes journées méditerranéennes. Les terrasses privées et les entrées indépendantes ajoutent une touche supplémentaire de commodité et d'exclusivité.
Emplacement privilégié à proximité des principaux points d'intérêt
Idéalement situé pour y vivre ou investir, le complexe est entouré de services essentiels et d'attractions majeures :
Front de mer d'Alicante : 1 km
Gare Renfe : 0,8 km
Centre commercial El Corte Inglés : 0,7 km
Palais de justice d'Alicante : 0,5 km
Aéroport d'Alicante : 12 km
Marina et port d'Alicante : 2 km
Parcours de golf (Alicante Golf) : 7 km
La région offre d'excellentes liaisons de transport public, des lieux culturels, des espaces verts et un accès facile aux belles plages de la ville.
Un investissement intelligent dans le style de vie côtier d'Alicante
Que vous recherchiez une résidence principale, une propriété de vacances ou un investissement à fort potentiel locatif, ces appartements loft en duplex à Benalúa représentent une opportunité unique dans l'un des quartiers les plus prometteurs d'Alicante.
Contactez-nous dès aujourd'hui pour réserver votre loft exclusif et profiter d'un mode de vie moderne au cœur d'Alicante.