Ático · Obra nueva Estepona. Costa del Sol

Ref.NB-77464
1.065.000€
  • Habitaciones
    Habitaciones 3
  • Baños
    Baños 2
  • Piscina
    Piscina Comunidad

 

Año de construcción: 2023
Fecha de entrega: 2026-09-01
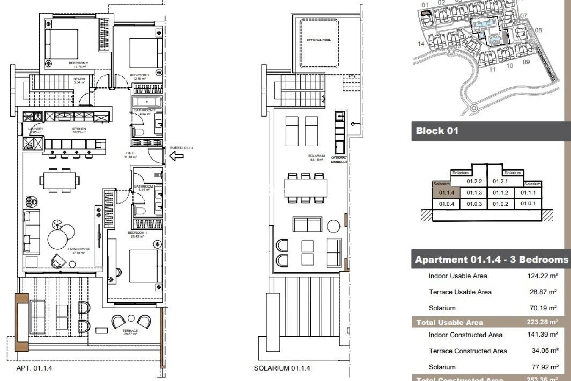
Habitaciones: 3
Baños: 2
Útiles: 124m2
Solarium: 68m2
Balcón: 76 m2
Piscina: Comunidad
Piso:
Distancia a la playa: 500 Mts.

Descripción & características

Ático · Obra nueva Estepona. Costa del Sol

COMPLEJO RESIDENCIAL DE OBRA NUEVA EN ESTEPONA

Localización

Contacte con Nosotros Solicitar información

Responsable del tratamiento: Overseas Property Market, Finalidad del tratamiento: Gestión y control de los servicios ofrecidos a través de la página Web de Servicios inmobiliarios, Envío de información a traves de newsletter y otros, Legitimación: Por consentimiento, Destinatarios: No se cederan los datos, salvo para elaborar contabilidad, Derechos de las personas interesadas: Acceder, rectificar y suprimir los datos, solicitar la portabilidad de los mismos, oponerse altratamiento y solicitar la limitación de éste, Procedencia de los datos: El Propio interesado, Información Adicional: Puede consultarse la información adicional y detallada sobre protección de datos Aquí.
Buscar
WhatsApp Contacte con Nosotros