Villas de lujo en la Milla de Oro de Marbella - Vida exclusiva en una ubicación privilegiada
Villas exclusivas con piscina privada en la prestigiosa Milla de Oro de Marbella
Descubra la esencia del lujo y la exclusividad con estas cuatro villas independientes en la codiciada Milla de Oro de Marbella. Diseñadas para proporcionar el máximo confort, privacidad y sofisticación, estas residencias ofrecen una entrada segura con acceso controlado, garantizando un estilo de vida tranquilo y privilegiado. Cada detalle ha sido meticulosamente elaborado para crear una experiencia de vida excepcional, donde la elegancia moderna se combina con una calidad superior.
Espacios exteriores incomparables con piscinas privadas climatizadas
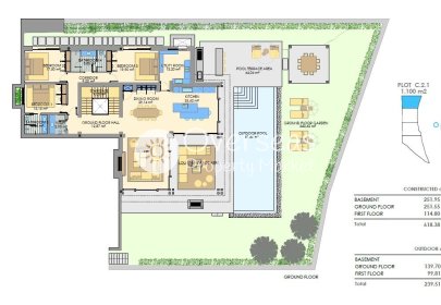
Cada villa cuenta con una piscina privada climatizada de 4,50 x 13,70 metros, equipada con un sistema de cloración de agua salada y una bomba de calor para mantener una temperatura ideal durante todo el año. Ninguna otra urbanización de la zona ofrece piscinas climatizadas de este tamaño, lo que hace que estas propiedades sean realmente únicas.
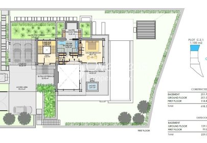
Ubicadas en amplias parcelas de 1.100 m², estas viviendas también incluyen jardines de estilo mediterráneo, una zona de barbacoa y amplias terrazas para disfrutar del idílico clima de Marbella.
Ubicación privilegiada en la Milla de Oro de Marbella
Situadas en uno de los lugares más codiciados de la Costa del Sol, estas villas ofrecen fácil acceso a las principales atracciones de Marbella:
Playa - 2 km (5 minutos en coche)
Tiendas y servicios - 900 m (3 minutos en coche)
Centro de Marbella - 4 km (8 minutos en coche)
Puerto Banús Marina - 6 km (10 minutos en coche)
Club de Golf Aloha - 7 km (12 minutos en coche)
Aeropuerto de Málaga - 55 km (40 minutos en coche)
Sofisticado diseño interior y características de alta gama
La primera villa disponible para la venta viene completamente amueblada con muebles de diseño y acabados de primera calidad, creando un ambiente elegante y contemporáneo. Las viviendas se distribuyen en tres niveles, cada uno de ellos con espacios cuidadosamente diseñados:
Nivel superior (nivel de entrada)
Garaje privado y entrada principal
Lujoso dormitorio principal con baño en suite y un amplio vestidor
Amplia terraza privada con impresionantes vistas panorámicas
Planta baja (sala de estar principal)
Tres dormitorios adicionales, dos cuartos de baño y un aseo de invitados
Amplia zona de estar y comedor de planta abierta con acceso directo al jardín privado y a la piscina
Cocina de última generación con electrodomésticos de primera calidad (GAGGENAU o similar)
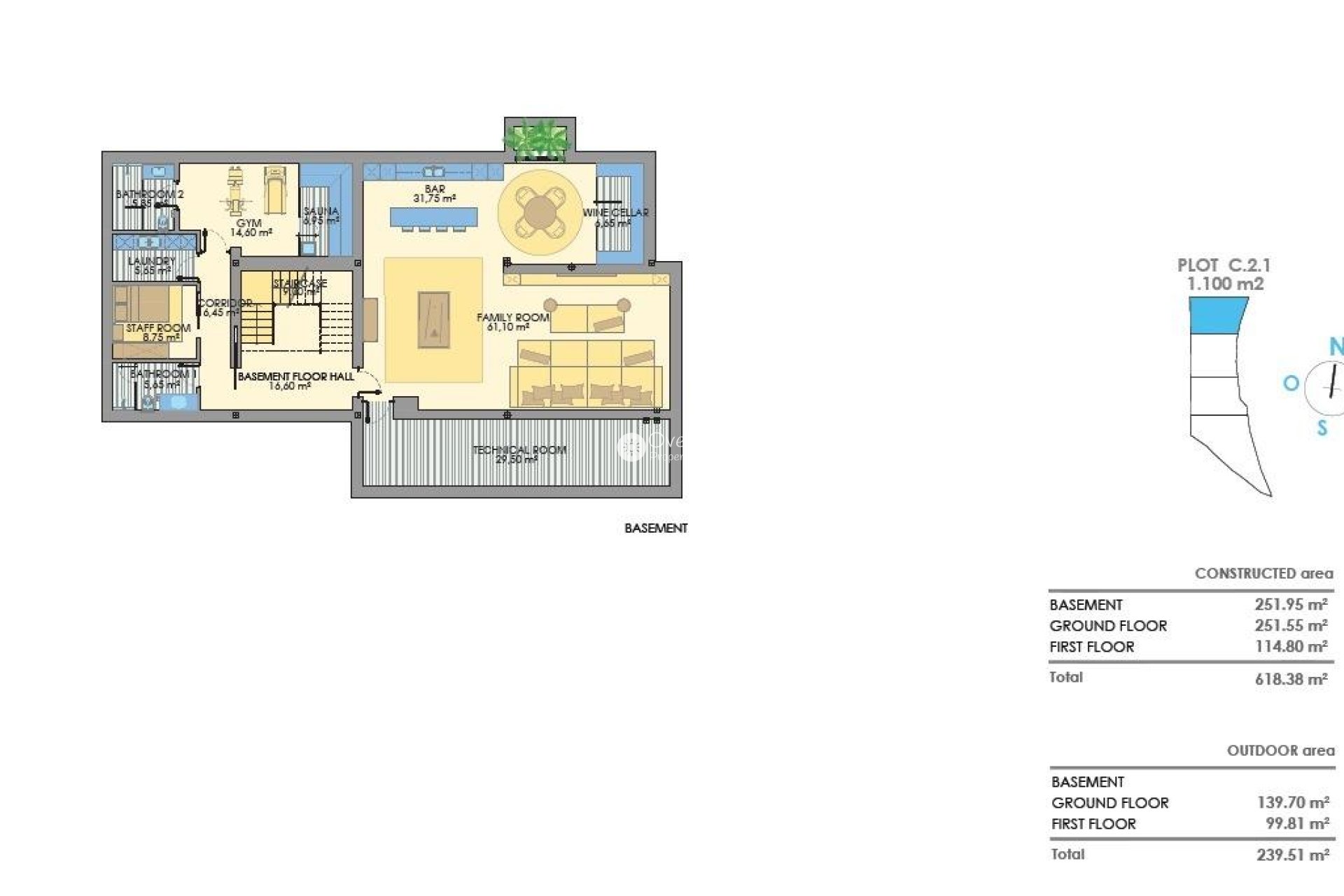
Nivel inferior (sótano)
Lavadero
Cine en casa y zona de juegos
Preinstalación para sauna y gimnasio
Trasteros
Dependencias para el personal con baño privado
Tecnología doméstica inteligente y materiales de alta calidad
Estas villas integran domótica de vanguardia para controlar el clima, la iluminación y la seguridad. Otras características premium incluyen:
Calefacción por suelo radiante en toda la vivienda, gestionada mediante un sistema Airzone
Suelos de gres porcelánico en las zonas de estar y de madera de alta gama en los dormitorios
Ascensor Schindler o similar para acceder sin esfuerzo a todos los niveles
La villa de sus sueños le espera en Marbella
Viva en una de las zonas más exclusivas de Marbella, donde el lujo y el confort se funden a la perfección. Póngase en contacto con nosotros hoy mismo para programar una visita y conocer de primera mano estas impresionantes villas.